Lowndes Area Knowledge Exchange (LAKE)
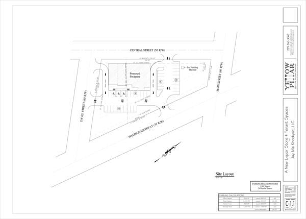
Map: Site Layout
REZ-2026-04 Jay Ma Khodiyar, ~1ac, 5507 Central St. (Clyattville), R-10 to C-G, County Water & Septic Work
Packet: One-Valdosta Lowndes Report, 3 Rezonings, 1 Subdivision, Paving, Alcohol, Housing Loan, LMIG @ LCC
9 March 2026
bigger
PDF
Photographs
by
Lowndes Area Knowledge Exchange (LAKE)
,
licensed by a
Creative Commons Attribution-Share Alike 3.0 U.S. License
.
Lowndes Area Knowledge Exchange (LAKE)