owl LAKE

Packet: Rezonings, Dogs, Roads, and Subdivisions @ LCC 2025-10-13 [Up]

LAKE blog post:

Documents received in response to a LAKE open records request:

Pictures

MMM

[Collage, Packet @ LCC 2025-10-13]
Collage, Packet @ LCC 2025-10-13

Agenda-2025-10-14

[Rezonings, Dogs, Roads, and Subdivisions]
Rezonings, Dogs, Roads, and Subdivisions
PDF

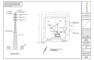
TWR-2025-01 New 260' Telecommunications Tower

[to construct a new ~260-foot telecommunications tower on a 10,000sf leased area on Rocky Ford Road near Watkins Road.]
to construct a new ~260-foot telecommunications tower on a 10,000sf leased area on Rocky Ford Road near Watkins Road.
PDF

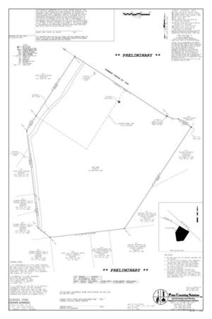
REZ-2025-15 Stewart Circle ~13.6ac, 3923, 4025 & 4051 Stewart Circle, C-C & R-1 to C-H, County Utilities

[to unify the zoning for the property to be developed with a mixture of commercial uses.]
to unify the zoning for the property to be developed with a mixture of commercial uses.
PDF

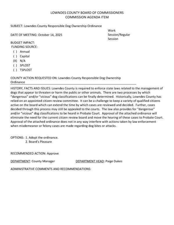
Lowndes County Responsible Dog Ownership Ordinance

[Approval of the attached ordinance will eliminate the need for the current citizen review board and move the hearing of these cases to Probate Court.]
Approval of the attached ordinance will eliminate the need for the current citizen review board and move the hearing of these cases to Probate Court.
PDF

[LOWNDES COUNTY RESPONSIBLE DOG OWNERSHIP ORDINANCE]
LOWNDES COUNTY RESPONSIBLE DOG OWNERSHIP ORDINANCE
PDF

[9. Dangerous Dog means any dog that:]
9. Dangerous Dog means any dog that:
PDF

[22. Pet animal means any domesticated animal commonly kept at a residence primarily for pleasure and companionship and not for work or utility purposes. Pet animals include dogs, domestic cats, domestic caged birds, canaries, parrots, rabbits, hamsters, guinea pigs and similar rodents, fish, and reptiles so long as such animals are not kept to supplement food supplies or for any commercial purpose. Pet animal does not include livestock or potbellied pigs.]
22. Pet animal means any domesticated animal commonly kept at a residence primarily for pleasure and companionship and not for work or utility purposes. Pet animals include dogs, domestic cats, domestic caged birds, canaries, parrots, rabbits, hamsters, guinea pigs and similar rodents, fish, and reptiles so long as such animals are not kept to supplement food supplies or for any commercial purpose. Pet animal does not include livestock or potbellied pigs.
PDF

[V. DESIGNATION OF DOG CONTROL OFFICER; CONSOLIDATION OF SERVICES; VI. RESPONSIBLE DOG OWNERSHIP]
V. DESIGNATION OF DOG CONTROL OFFICER; CONSOLIDATION OF SERVICES; VI. RESPONSIBLE DOG OWNERSHIP
PDF

[c. Notice of Classification to Owner and Owner Response]
c. Notice of Classification to Owner and Owner Response
PDF

[A. The Notice of Classification shall also include a form for the owner of the dog to]
A. The Notice of Classification shall also include a form for the owner of the dog to
PDF

[e. Probate Court Decision]
e. Probate Court Decision
PDF

[h. Certificates of Registration; Deadline for Obtaining; Requirements for Issuance of Certificate; Individuals Excluded from Receiving Registration; Limitation of Ownership; Annual Renewal; Revocation; Temporary Certificates of Registration]
h. Certificates of Registration; Deadline for Obtaining; Requirements for Issuance of Certificate; Individuals Excluded from Receiving Registration; Limitation of Ownership; Annual Renewal; Revocation; Temporary Certificates of Registration
PDF

[5. Except as provided in this subsection or unless otherwise specified by this Ordinance, a Certificate of Registration for a vicious dog shall be issued if the Dog Control Officer determines that the following requirements have been met:]
5. Except as provided in this subsection or unless otherwise specified by this Ordinance, a Certificate of Registration for a vicious dog shall be issued if the Dog Control Officer determines that the following requirements have been met:
PDF

[6. No Certificate of Registration for a classified dog shall be issued to any person who....]
6. No Certificate of Registration for a classified dog shall be issued to any person who....
PDF

[i. Notifications by Owner; Change in Ownership of Dog; Changes in Residence]
i. Notifications by Owner; Change in Ownership of Dog; Changes in Residence
PDF

[j. Limitations on Classified Dog’s Presence Outside the Secure Enclosure; Defense]
j. Limitations on Classified Dog’s Presence Outside the Secure Enclosure; Defense
PDF

[VII. INVESTIGATIONS; ENFORCEMENT; INTERFERENCE, VIII. VIOLATIONS AND PENALTIES]
VII. INVESTIGATIONS; ENFORCEMENT; INTERFERENCE, VIII. VIOLATIONS AND PENALTIES
PDF

[IX. FEES, X. REMEDIES, XI. SEVERABILITY]
IX. FEES, X. REMEDIES, XI. SEVERABILITY
PDF

[XII. REPEALER, SO ADOPTED]
XII. REPEALER, SO ADOPTED
PDF

Purchase of Wetland Credits for Twin Lakes Road Paving Project

[BUDGET IMPACT: $54,400.00 FUNDING SOURCE: (xX) TSPLOST]
BUDGET IMPACT: $54,400.00 FUNDING SOURCE: (xX) TSPLOST
PDF

Agreement for PI No. 0015614 CR 136/Old Quitman Road

[The Georgia Department of Transportation (GDOT) is proposing to replace the CR 136/Old Quitman Bridge over the tracks of CSX Transportation.]
The Georgia Department of Transportation (GDOT) is proposing to replace the CR 136/Old Quitman Bridge over the tracks of CSX Transportation.
PDF

[Department 1D:4848010000 RAILROAD CONSTRUCTION AGREEMENT]
Department 1D:4848010000 RAILROAD CONSTRUCTION AGREEMENT
PDF

[Page 53]
Page 53
PDF

[Page 54]
Page 54
PDF

[Page 55]
Page 55
PDF

[Page 56]
Page 56
PDF

[Page 57]
Page 57
PDF

[IN WITNESS WHEREOF: CSX & GDOT]
IN WITNESS WHEREOF: CSX & GDOT
PDF

[IN WITNESS WHEREOF: Lowndes County]
IN WITNESS WHEREOF: Lowndes County
PDF

[RESOLUTION]
RESOLUTION
PDF

[CSX GEORGIA SECURITY AND IMMIGRATION COMPLIANCE ACT AFFIDAVIT]
CSX GEORGIA SECURITY AND IMMIGRATION COMPLIANCE ACT AFFIDAVIT
PDF

[Lowndes County GEORGIA SECURITY AND IMMIGRATION COMPLIANCE ACT AFFIDAVIT]
Lowndes County GEORGIA SECURITY AND IMMIGRATION COMPLIANCE ACT AFFIDAVIT
PDF

[GDOT Cost Estimate to be paid by GDOT]
GDOT Cost Estimate to be paid by GDOT
PDF

[Page 64]
Page 64
PDF

[Page 65]
Page 65
PDF

[Page 66]
Page 66
PDF

[ESTIMATE OF ENGINEERING FEES]
ESTIMATE OF ENGINEERING FEES
PDF

[CSX Letter of Justification for $5M & $10M RPL Insurance]
CSX Letter of Justification for $5M & $10M RPL Insurance
PDF

[CSX Increased Railroad Protective Liability Insurance Limits]
CSX Increased Railroad Protective Liability Insurance Limits
PDF

[GDOT SPECIAL PROVISION FOR PROTECTION OF RAILWAY INTERESTS]
GDOT SPECIAL PROVISION FOR PROTECTION OF RAILWAY INTERESTS
PDF

[Page 71]
Page 71
PDF

[Page 72]
Page 72
PDF

[Page 73]
Page 73
PDF

[Page 74]
Page 74
PDF

[Page 75]
Page 75
PDF

[Page 76]
Page 76
PDF

[Page 77]
Page 77
PDF

[Page 78]
Page 78
PDF

[Page 79]
Page 79
PDF

[Page 80]
Page 80
PDF

[Page 81]
Page 81
PDF

[INSURANCE REQUIREMENTS]
INSURANCE REQUIREMENTS
PDF

[Certificates of Insurance and all notices and correspondence regarding the insurance]
Certificates of Insurance and all notices and correspondence regarding the insurance
PDF

[SPECIAL PROVISION Section 205—Roadway Excavation]
SPECIAL PROVISION Section 205—Roadway Excavation
PDF

[GDOT SUBJECT: Agreement for Signature]
GDOT SUBJECT: Agreement for Signature
PDF

[Page 86]
Page 86
PDF

Acceptance of Infrastructure for The Landings Phase IV

[The Landings Phase IV is located off of Val Del Road and includes 52 residential lots. All construction and paperwork have been completed. Engineering and Utilities staff have conducted the final inspection of the construction. The developer has requested Lowndes County to accept the infrastructure, which includes the roads and right of ways, stormwater infrastructure, and utilities infrastructure.]
The Landings Phase IV is located off of Val Del Road and includes 52 residential lots. All construction and paperwork have been completed. Engineering and Utilities staff have conducted the final inspection of the construction. The developer has requested Lowndes County to accept the infrastructure, which includes the roads and right of ways, stormwater infrastructure, and utilities infrastructure.
PDF

September-22-2025-Work-Session-Minutes

[Page 1]
Page 1
PDF

September-23-2025-Regular-Session-Minutes

[Page 1]
Page 1
PDF